Dom, ktorý čaká na nový príbeh – oáza pokoja len kúsok od Rimavskej Soboty
- Ulica a/alebo č. domu: Dolné Zahorany
- Mesto/obec: Dolné Zahorany
- Okres: Rimavská Sobota
- Štát: Slovensko
- PSČ: 97901
- Pridané: 27. apríla 2026 14:28
- Končí o: 35 dní, 21 hod.
Popis
Pamätáte si na vôňu prázdnin u starej mamy, rannú kávu na priedomí a ticho, ktoré prerušuje len spev vtákov? Tento dom v pôvodnom, autentickom stave v obci Dolné Zahorany presne takúto atmosféru ponúka. Nie je to len stavba, je to príležitosť vrátiť život miestu, ktoré má dušu.
Dom stojí na slnečnom pozemku, kde čas plynie akosi pomalšie. Hoci si vyžaduje kompletnú rekonštrukciu a silné ruky nového majiteľa, odmení sa vám neopakovateľným géniom loci, ktorý v moderných novostavbách nenájdete.
Pre koho je tento dom určený?
- Pre snílkov, ktorí si chcú navrhnúť interiér presne podľa seba.
- Pre rodinu, ktorá túži po záhrade s vlastnými ovocnými stromami a bezpečím vidieka.
- Pre mestského človeka, ktorý chce mať ruch Rimavskej Soboty na dosah (iba 13 km a 10 minút autom), no večer chce zaspávať v absolútnom tichu.
- Pre milovníkov zviera pes GORO by rád našiel novú rodinu.
Základné informácie:
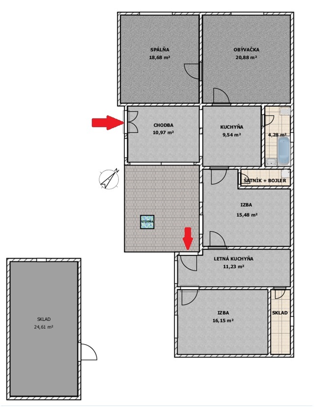
- Pozemok: 1246 m² plný možností (na altánok, bylinkovú záhradu či detské ihrisko).
- Zastavaná plocha:478 m²
- Stav: Pôvodný, poctivý – tehlové múry, ktoré pretrvajú generácie.
- Lokalita: Dolné Zahorany – komunita, kde sa ľudia ešte stále zdravia a pomáhajú si bez neprispôsobivých občanov.
- Počet izieb: 4 + kuchyňa, kúpeľňa, komora
- Siete: elektrina, studňa
- Možnosť zmeny vnútorného členenia
- Stav: pôvodný (nutná kompletná rekonštrukcia)
- Dom sa predáva v stave ako stojí a leží
Tento dom nehľadá investora, ktorý ho zbúra. Hľadá niekoho, kto v ňom opäť rozsvieti svetlá a zapáli oheň v krbe. Príďte sa nadýchnuť jeho atmosféry a uvidíte ten potenciál sami.
Obhliadky sú možné po dohode kedykoľvek.
Cena: 40.000 € (srdcom otvorená dohode)
Na stretnutie s Vami sa teší certifikovaný realitný maklér: Ing. Miroslav Táčik RSc., 0905427225
Viac info a fotiek na: https://www.realitygemer.com/nehnutelnost/1261-dom-ktory-caka-na-novy-pribeh-oaza-pokoja-len-kusok-od-rimavskej-soboty
779 celkových prezretí, 7 dnes























