Zľava 15 000€ !!! Predaj 3 izbového bytu vrátane pivnice v Rimavskej Sobote
- Pridané: 5. februára 2026 16:48
- Končí o: 23 dní, 6 hod.
Popis
Zľava 15 000€ !!!
Ponúkam na predaj 3 izbový byt s balkónom a pivničnou kobkou, čiastočne zariadení alebo podľa dohody aj prázdny. Zateplená bytovka, plastové
okná, slušný vchod.
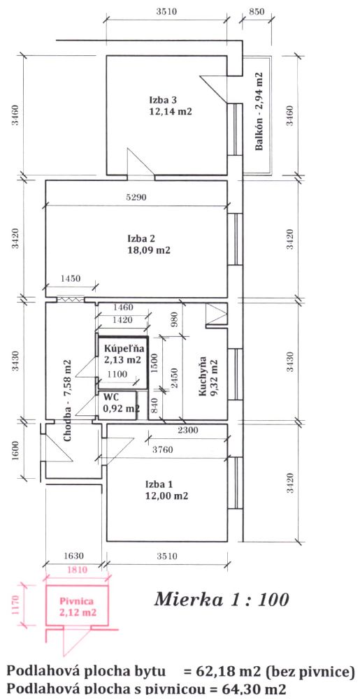
Dispozícia bytu viď príloha – pôdorys bytu.
Vedľa bytového domu je ihrisko, dostupné parkovanie, v blízkosti železničná a autobusová stanica, obchody.
Možná výmena za lacnejšiu nehnuteľnosť priamo v Rimavskej Sobote s Vašim doplatkom, ideálne s výťahom.
Realitné kancelárie prosím nevolajte pokiaľ nemáte konkrétneho klienta na tento konkrétny byt.
Kontakt: 0948 50 100 6
437 celkových prezretí, 1 dnes
ID inzerátu: 376984bbe3c1c8e
















